/
【外観】
- 物件名
- RJRプレシア大森北
- 価格
- 17.6万円~31万円
- 管理/共益費
- 12,000円~20,000円
- 築年月
- 2024年12月(新築)
- 総戸数
- -
- 設備条件
-
- エレベーター
- 敷地内ごみ置き場
- オートロック
- 宅配ボックス
- 設備(その他)
-
-
-
- 駐車場/月額
- 近隣/50,000円 100m
- 用途地域
- -
- 戸数
- - / -
- 取引態様
- 仲介
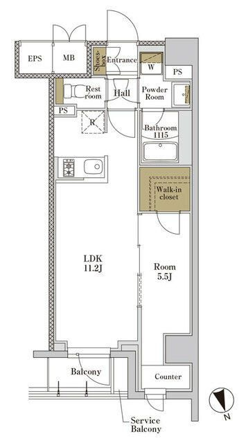
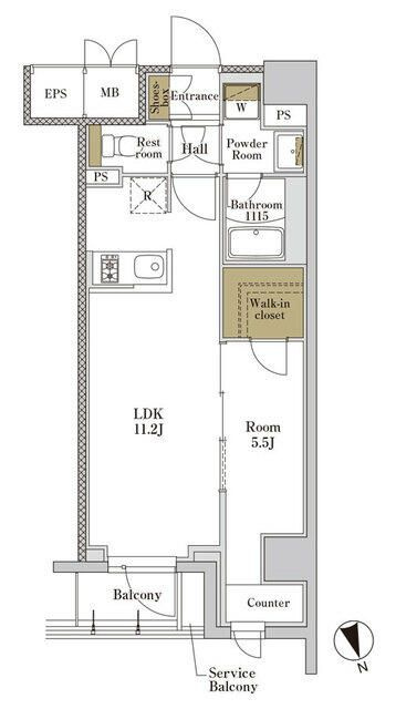
RJRプレシア大森北の基本情報
RJRプレシア大森北の詳細情報
RJRプレシア大森北で募集中の物件
近隣の物件
RJRプレシア大森北
