/
【外観】
- 物件名
- グローリオシェルト池袋Ⅱ
- 価格
- 23万円
- 管理/共益費
- 15,000円
- 築年月
- 2024年5月(築1年)
- 総戸数
- -
- 設備条件
-
- エレベーター
- 敷地内ごみ置き場
- オートロック
- 宅配ボックス
- 設備(その他)
-
-
-
- 駐車場/月額
- 近隣/50,000円 100m
- 用途地域
- -
- 戸数
- - / -
- 取引態様
- 仲介
-
スーパー
マルエツ プチ 中落合一丁目店
1935m(25分)
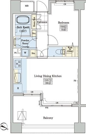
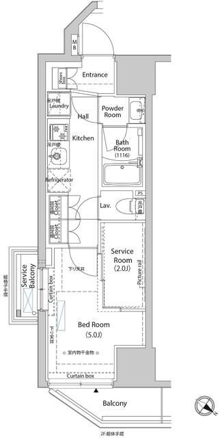
グローリオシェルト池袋Ⅱの基本情報
グローリオシェルト池袋Ⅱの詳細情報
グローリオシェルト池袋Ⅱで募集中の物件
周辺施設
近隣の物件
グローリオシェルト池袋Ⅱ
