/
【外観】
- 物件名
- カスタリア中延
- 価格
- 18.2万円
- 管理/共益費
- 8,000円
- 築年月
- 2008年5月(築17年)
- 総戸数
- 82戸
- 設備条件
-
- エレベーター
- 駐輪場
- バイク置場あり
- 敷地内ごみ置き場
- インターネット対応
- オートロック
- 宅配ボックス
- 防犯カメラ
- 24時間ゴミ出し可
- 設備(その他)
-
-
-
- 駐車場/月額
- 近隣/50,000円 (税込) 100m
- 用途地域
- -
- 戸数
- 82戸 / -
- 取引態様
- 仲介
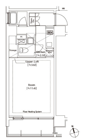
カスタリア中延の基本情報
カスタリア中延の詳細情報
カスタリア中延で募集中の物件
近隣の物件
カスタリア中延
